405 casas en venta en Abasto, Rosario
-
1/19U$S 78.000
Casa en Abasto, Rosario
Casa de pasillo con cochera en Barrio España y Hospitales Ubicada en Gálvez 1324 a pocas cuadras de calle 27 de febrero. ...
2 1 -
1/21U$S 177.000
Casa en Abasto, Rosario
En el Barrio España y Hospitales, a 100 metros de la Av. San Martín, una zona en constante crecimiento comercial encontramos...
185m2 2 2 -
1/23U$S 120.000
Casa en Abasto, Rosario
Casa de dos plantas con distribución práctica y funcional, ideal para familias o para aquellos que buscan un espacio para...
251m2 3 2 -
1/18U$S 58.000
Casa en Abasto, Rosario
Departamento Vivienda unifamiliar (Duplex) en venta, ubicado en calle Maipu 2285/2287 Unidad 06/02 -07/01, de la Ciudad ...
47m2 2 1 -
-
1/18U$S 59.000
Casa en Abasto, Rosario
Casa en Venta. Uruguay 1436: entre Corrientes y Paraguay, compuesta de: garage, cocina comedor, baño, 2 dormitorios, patio...
2 1 -
1/12U$S 78.000
Casa en Abasto, Rosario
Ocampo 1457 ( Casa Planta Alta ) Zonificación: Ubicada en Barrio Abasto , a una cuadra del bulevar 27 de Febrero , en pleno...
3 1 -
1/41U$S 450.000
Casa en Abasto, Rosario
CASA RECICLADA DE AUTOR, 4 DORMITORIOS CON COCHERA Y PILETA EN VENTA Casa de 4 dormitorios completamente reciclada, con ...
384,9m2 4 3 -
1/31U$S 265.000
Casa en Abasto, Rosario
Casa de estilo ideal uso profesional, institucional y comercial. Desarrollada en dos platas: Planta baja: Local comercial...
3 2 -
1/20U$S 209.000
Casa en Abasto, Rosario
A 2 cuadras de Av. Pellegrini, con acceso rápido a todos los puntos de interés de la ciudad, casa al frente desarrollada ...
205m2 3 3 -
1/14U$S 59.000
Casa en Abasto, Rosario
Casa en venta de dos plantas, con ambientes amplios y funcionales. En planta baja, cuenta con un living separado del comedor...
144m2 4 2 -
1/21U$S 60.000
Casa en Abasto, Rosario
Venta PH en Barrio Hospitales – 2 Plantas, Patio y Posibilidad de Ampliación Ubicada en un pasillo con solo dos unidades...
85m2 2 2 -
1/25U$S 450.000
Casa en Abasto, Rosario
Casa a estrenar en Sarmiento 2324 Distribuida en dos plantas, esta casa es resultado de un fino reciclado de autor. Esta ...
205m2 4 4 -
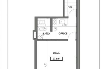
1/7U$S 107.000
Casa en Abasto, Rosario
Propiedad en venta ubicada en pleno corazón de Abasto. Apta local o depósito con ingreso vehicular y peatonal. Posibilidad...
1 -
1/19U$S 135.000
Casa en Abasto, Rosario
Ubicada en planta baja, desarrollada en dos niveles y compuesta de: Ingreso por garage de gran medida y uso exclusivo, que...
112,75m2 1 2 -
1/18U$S 105.000
Casa en Abasto, Rosario
Casa ubicada en Barrio Abasto de muy buena calidad y diseño constructivo; desarrollado en dos niveles y compuesto de: En ...
119,86m2 2 2 -
1/6U$S 1.230.000
Casa en Abasto, Rosario
Inmueble sobre un terreno de aprox. 1505 mts. Son 3 lotes. Frente sobre Cerrito aprox. 31m incluido terreno. Superficie cubierta...
2.000m2 2 -
1/10U$S 63.345
Casa en Abasto, Rosario
DEPARTAMENTO MONOAMBIENTE DIVISIBLE DE EXELENTE CALIDAD CONSTRUCTIVA UBICACION La unidad se encuentra lista para entrega...
49m2 1 -
1/32U$S 125.000
Casa en Abasto, Rosario
Casa de 4 dormitorios en esquina Características de la propiedad La casa se desarrolla en dos plantas. En planta baja cuenta...
223m2 4 2 -
1/14U$S 95.000
Casa en Abasto, Rosario
Excelente depto (Piso 4° al frente) ubicado en "Barrio Abasto", uno de los mejores de la ciudad, cerca de Escuelas y del ...
54m2 2 1